West Coast Modular Homes
Custom Modular Home Floor Plans in BC
At West Coast Modular Homes, we do not limit our clients to a small set of fixed models. We work with each customer to design a custom modular home floor plan that fits their lifestyle, property, budget, and long-term goals.
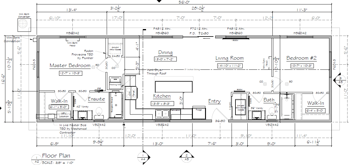
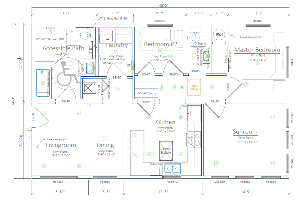
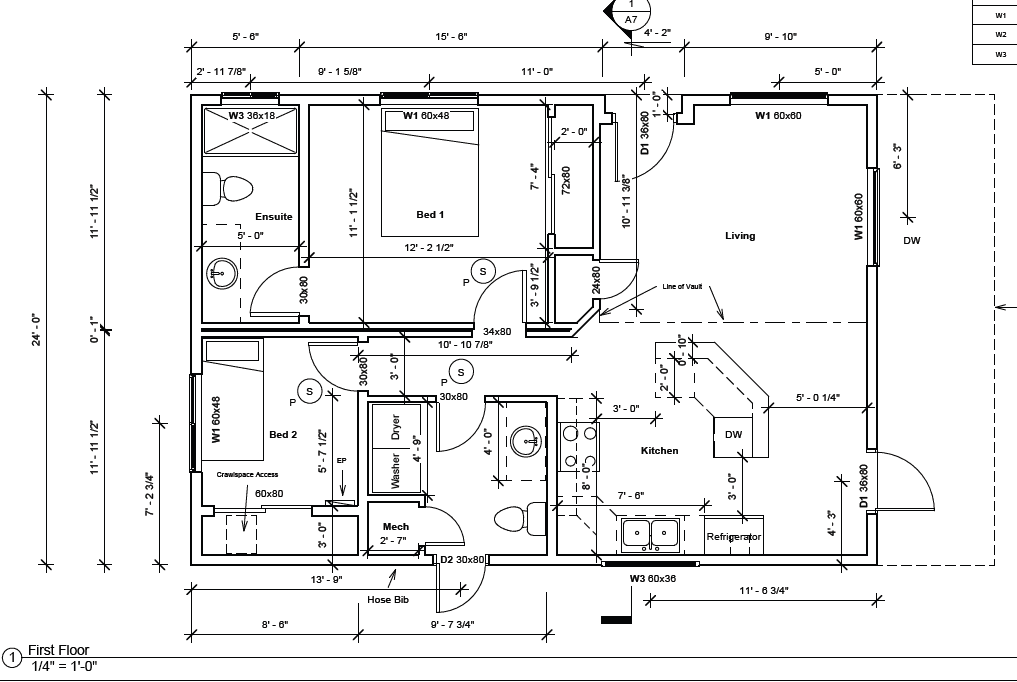
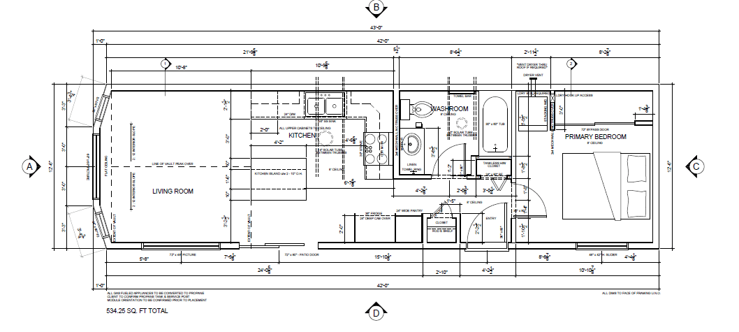
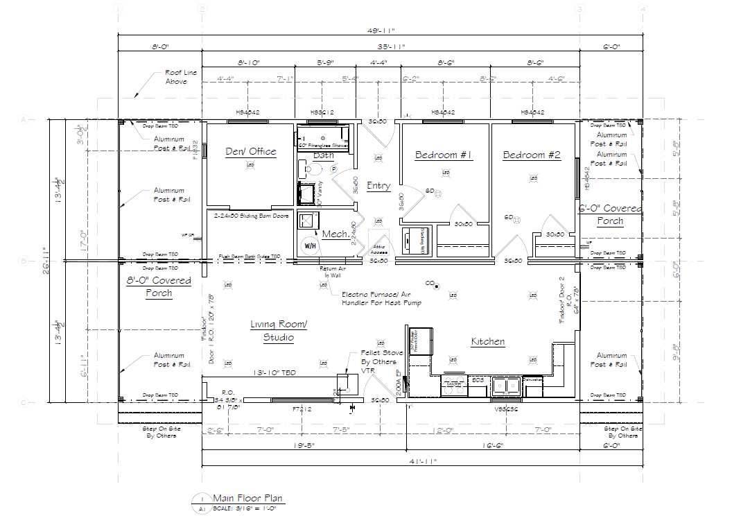
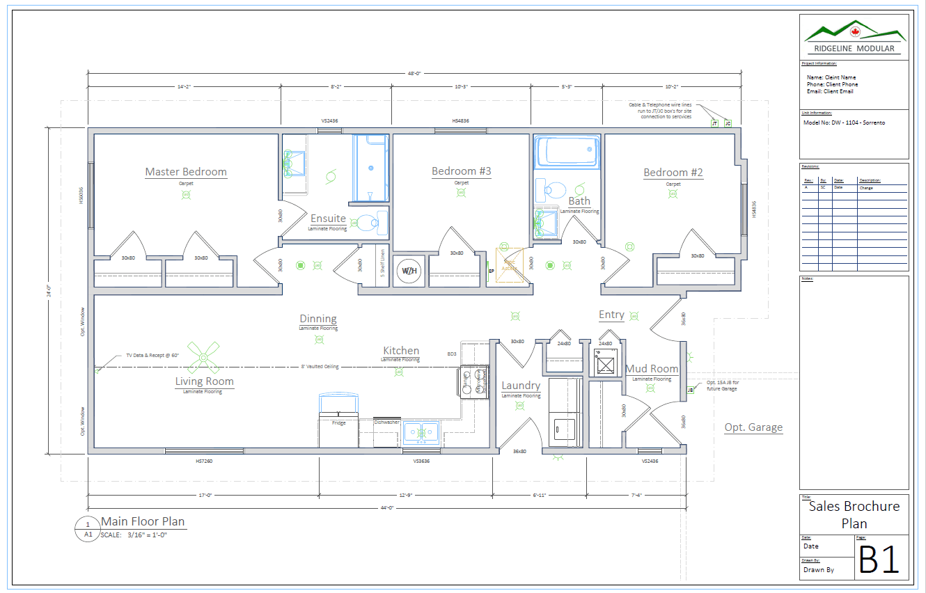
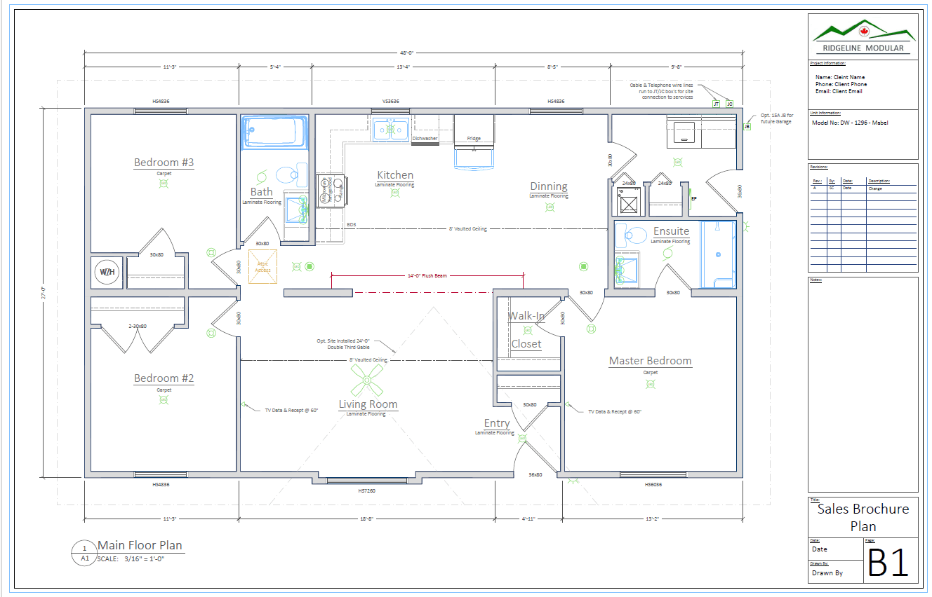
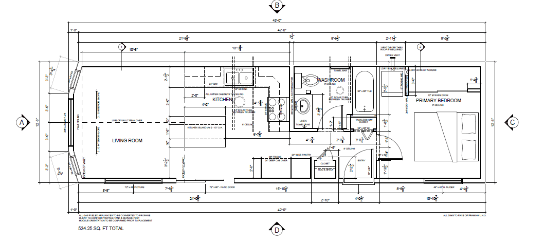
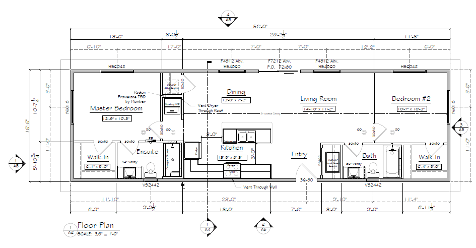
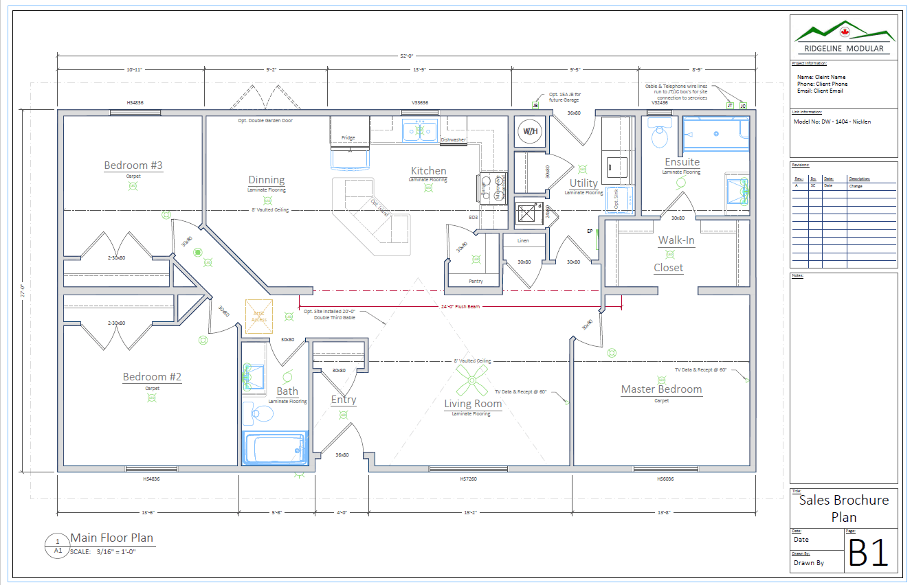
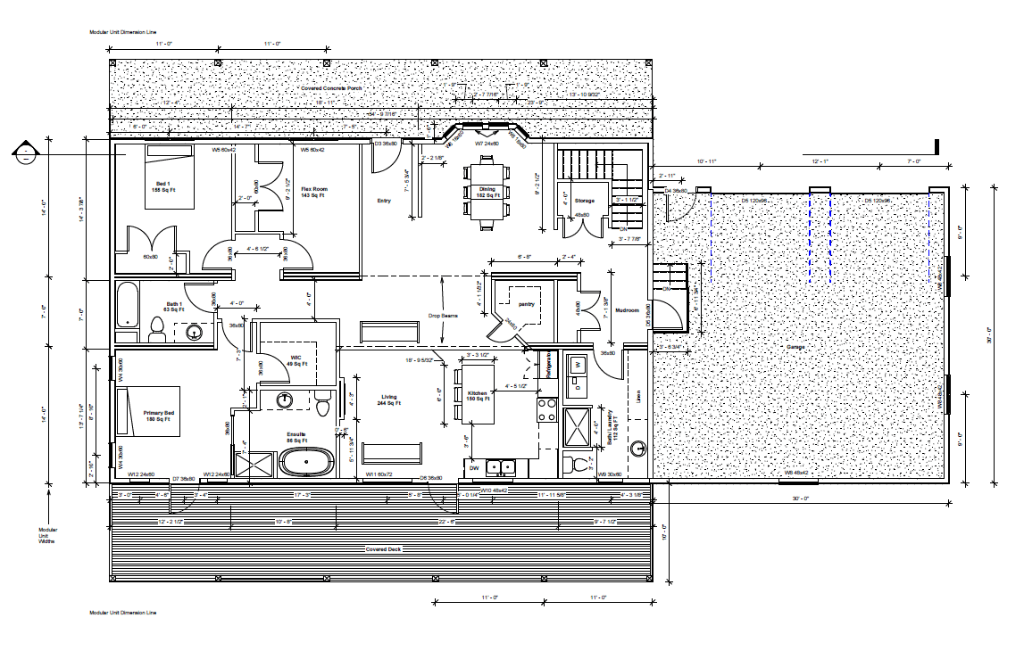
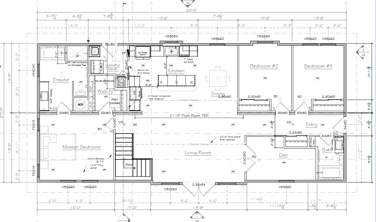
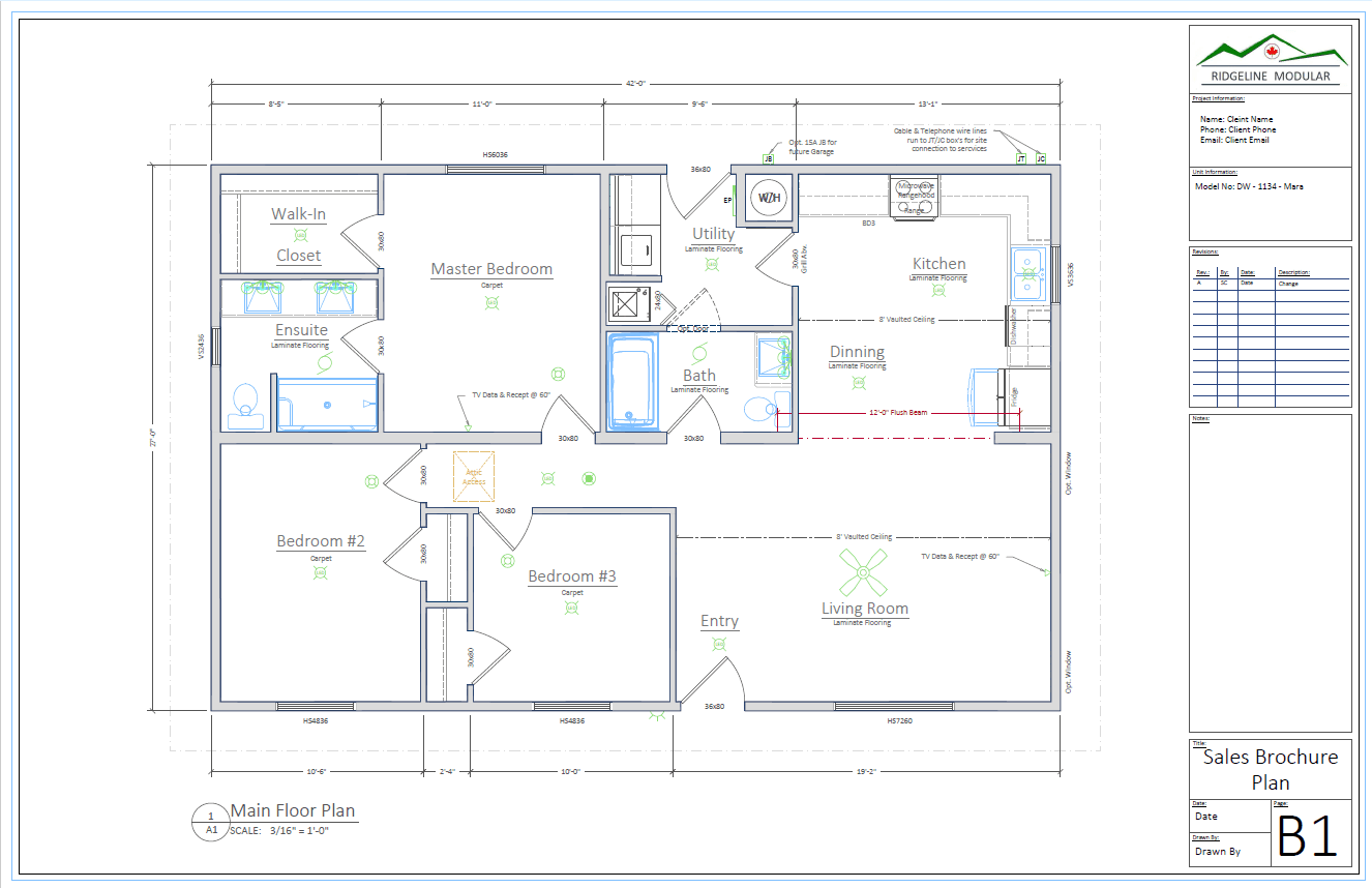
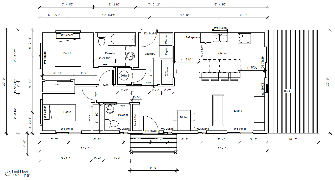
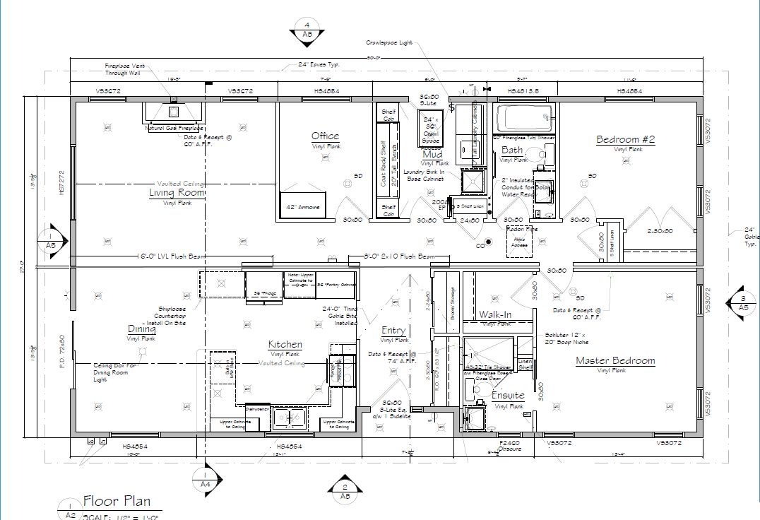
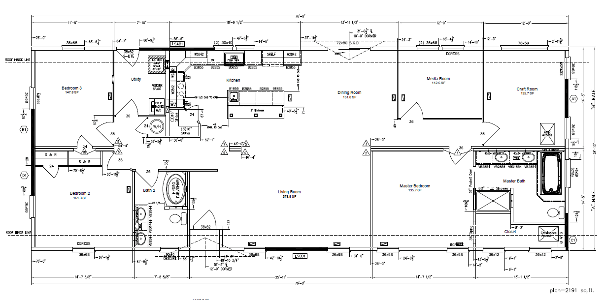
The floor plans shown on this page are examples of homes we have designed in the past. They can be used as a starting point, a template, or inspiration for your own custom modular home. Some clients begin with one of these layouts and make adjustments, while others combine ideas from multiple plans or start from scratch.
Whether you are planning a single wide, double wide, park model, retirement home, family home, or rural property residence, our team can help create a floor plan that is practical, efficient, and tailored to the way you live.
How We Design Custom Floor Plans
Our process starts with a conversation about how you want your home to function. We take the time to understand your must-haves, preferred layout, number of bedrooms and bathrooms, kitchen and living priorities, storage needs, site conditions, and overall budget. From there, we help shape a modular home floor plan that balances comfort, efficiency, appearance, and buildability.
Lifestyle
We look at how you live now and how your needs may change in the future so your home has the right flow, function, and flexibility.
Budget
Understanding your budget helps us recommend layout options, finish levels, and features that provide the best value for your investment.
Property & Location
We consider site access, orientation, views, sunlight, and how the home will sit on the property so the design works well in real life.
Timeline
We help align the planning stage, design decisions, and production timeline so the project moves forward with clear expectations.
Use These Floor Plans as a Starting Point
The plans below are not one-size-fits-all models. They are examples of previous modular home designs that can be used as inspiration, adapted as templates, or refined into a layout that better suits your family, land, and goals.
If you see a floor plan you like, we can modify it. If you do not see exactly what you want, we can work with you to design a custom modular home from the ground up.
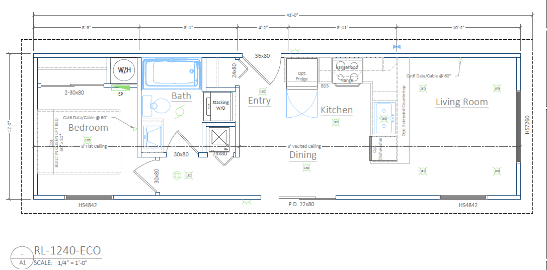
Single Wide Floor Plans...
Park Models...
The Modular World, Imagined Differently
We are looking at modular homes differently, and want to offer the freedom of creativity of a sitebuilt home, in the convivence and cost efficiency of a modular home.
Instead of using pre designed floorplans, our team will work with you to build a floorplan that suits your lifestyle and location.
We look to spend the time with our customers to get to know their needs and wants to offer options that maximize the space and consider the feel, experience and efficiently of the home.
Our team is always on the hunt for options and features that can optimize your modular. From energy efficiency utilities, mood enhancing lighting, oversize windows, and integrated storage to name a few. And we are always excited to get suggestions or recommendations from our clients of new ideas!
Considerations when desgning floorplans
01
Lifestyle
It is important to look at lifestyle, both right now and in the future to design your home to accommodate flow of living and accomidations.
02
budget
Letting us know your budget will help us give you options that fit within it.
03
Location
Understanding where the home is going as well as how it will sit on the property is key in designing a home.
04
Timeline
We can build most homes within 2-3 months, but the planning stage can take some extra time, so it is important that we are all on the same page as far as the timeline goes.

© 2026 All Rights Reserved.
